Veremos neste curso os conceitos e elementos do Desenho Técnico Arquitetônico, conhecendo os instrumentos básicos de desenho, passando pela diferenciação entre desenho técnico e artístico e verificando as normas que regem os princípios do projeto arquitetônico. Aprenderemos a elaborar plantas, cortes e vistas e como cotá-los. Veremos os tipos de escada e como fazer seu desenho passo a passo. Conheceremos outros elementos de projeto, como plantas de cobertura, locação e situação. Por fim veremos a humanização de projetos e teremos exercícios para colocar em prática todo o conhecimento adquirido.
Módulos deste curso
Módulo 1
Introdução ao Desenho Técnico Arquitetônico
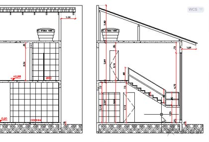
Neste módulo aprenderemos as diferenças entre desenho técnico e desenho artísitico, veremos os tipos de folha, as normas de desenho, os tipos de linha e instrumentos de trabalho. Também veremos a escrita técnica e o uso do escalímetro.































Pollyana Battisti –
O curso é muito bom. Com um explicação de fácil compreensão.
Perfeito para quem quer aprender os conceitos básicos de Desenho Técnico Arquitetônico de forma rápida a qualquer momento.
Eu fiz e recomendo.
Juliano Ferrarez dos Santos –
Muito bom o conteúdo do curso, eu já trabalho na área e vi que não sabia tudo, então aprendi mais detalhes importantes que irão me ajudar profissionalmente.
Raniery Pereira –
O curso é muito bom, e o atendimento online é realmente online e estável, tirei dúvidas e tive algumas dicas, isso sem contar nos preços que são pra lá de acessíveis e ainda tem desconto cadastrando-se no site. Muito Bom! Nota 10, Equipe Render.
Manoel Inácio Gomes Neto Gomes –
Todos temos sempre alguma coisa a mais a aprender, e os cursos da Render têm proporcionado isso, com muita objetividade.
Sergio Luis Stefani –
Um bom curso para quem deseja entrar no mundo do desenho técnico arquitetônico. Depois é só praticar. O ideal é fazer um curso de AutoCAD, ou REVIT para já entrar nas ferramentas CAD.
Gabriel Capellari Santos –
Claro e objetivo.
Fabiano (comprador verificado) –
Curso Excelente, Muito didático; Quando terminar este vou fazer outro.
Emilton (comprador verificado) –
Aula bem apresentada e simples de compreender.
Leandro (comprador verificado) –
Bem exemplificado e prático!
osvaldo de Sousa –
Muito bom recomendo.
edilson (comprador verificado) –
Excelente curso
WAGNER (comprador verificado) –
Curso muito bom, didática excelente